5 bedrooms
3 bathrooms
2 receptions
2077.43 sq ft (193 sq m)
21796.93 sq ft
5 bedrooms
3 bathrooms
2 receptions
2077.43 sq ft (193 sq m)
21796.93 sq ft
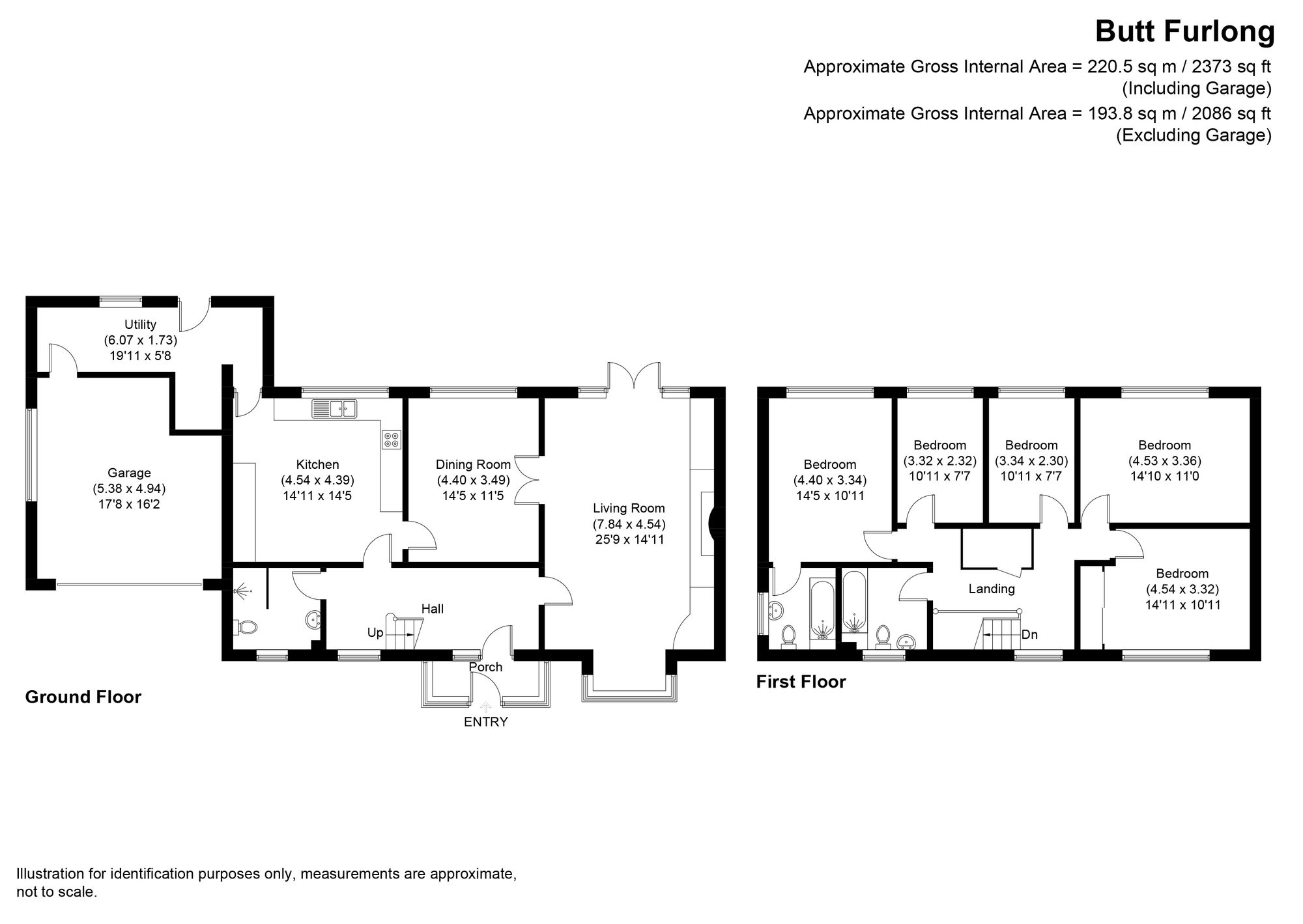
Nestled within the sought-after village of Fladbury, this substantial five-bedroom, three-bathroom detached residence occupies an extensive plot of approximately half an acre and presents an exciting opportunity for modernisation, extension, or potential development (subject to the necessary planning consents).
The property offers generous and versatile accommodation throughout. The principal reception room measures 25’9 (max) x 14’11 and features a charming bay window, open fireplace, and French doors opening onto the rear garden, creating a wonderful space for both relaxation and entertaining. The well-proportioned fitted kitchen is complemented by an adjoining utility room, while the ground floor further benefits from an entrance porch, welcoming hallway, and a shower room.
Upstairs, a spacious landing leads to five bedrooms and a family bathroom. The principal bedroom is particularly noteworthy, complete with an en-suite bathroom.
Externally, the property is set within impressive grounds of approximately half an acre, providing both privacy and scope for further enhancement. A double garage and ample driveway parking complete the picture.
Fladbury itself is a highly regarded village, offering a delightful blend of rural charm and convenient access to nearby towns and transport links, making this an ideal family home with exceptional potential.
Location
The charming village of Fladbury has a thriving community and is equipped with a parish church, a C of E First School, two popular public houses, hairdressers, and a locally renowned pie & butcher's shop. The river Avon runs alongside the village, providing ample opportunities for boating, fishing, and wildlife activities. Fladbury also offers a fantastic golf course, a tennis club, canoeing, and a sports field for sports enthusiasts. The area is surrounded by stunning countryside that is perfect for walking. Additionally, it is only a short drive away from the picturesque Cotswolds, while the Georgian market town of Pershore is located approximately five miles to the West and offers a wide range of shops and services.
Tenure: FREEHOLD
EPC Rating: D
Local District Council: Wychavon
Council Tax band: G
Jones & Associates, bespoke estate agents, are the highest rated estate agent in Pershore & the surrounding villages for customer service, by Google customer reviews, and we have been involved in bespoke estate agency within the area for over 20 years whilst retaining an extensive network of independent estate agents throughout the London region and U.K., which means you receive a highly dedicated personal service backed up by extremely effective marketing and a vast proactive buyer network.























