721.18 sq ft (67 sq m)
Shop to rent in High Street, Pershore, WR10
ShortlistKey features
- Available from 1st March 2026
- High Street frontage with large display window, ideal for retail visibility and branding.
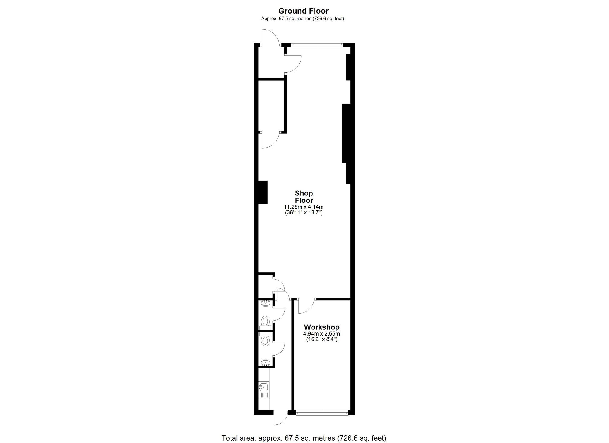
- Generous ground floor accommodation extending to approximately 67.5 sq m (726 sq ft) in total.
- Long, open-plan shop floor offering flexible layout options for retail, studio, or showroom use.
- Dedicated rear workshop area, well suited to servicing, repairs, production, or storage.
- Character features including exposed timber beams, adding charm and individuality to the space.
- Practical tiled flooring in main areas, providing durability and ease of maintenance.
- Ancillary facilities including WC and wash area to the rear of the property.
- Rear Garden.
An excellent opportunity to acquire a well-presented and highly versatile shop front retail premises situated in a prominent position along a well-trafficked street, benefitting from strong visibility and consistent passing footfall.
Currently configured as a specialist cycle shop and workshop, the property offers a flexible layout extending to approximately 726 sq ft (67.5 sq m), making it suitable for a variety of retail, showroom, or service-based uses (subject to any necessary consents).
The main shop floor provides an impressive, elongated retail space with attractive frontage and display window, allowing for excellent product visibility and merchandising potential. The interior is well-lit and arranged to maximise usable floor area, offering ample scope for a bespoke fit-out tailored to an incoming occupier’s requirements.
To the rear, the property benefits from a dedicated workshop area, ideal for storage, preparation, or operational use, alongside additional ancillary space. The current setup demonstrates the unit’s practicality for both retail and trade-based businesses, with generous room for equipment, stock and workspace.
Further benefits include WC facilities, additional storage areas, and rear access, enhancing the functionality of the premises for day-to-day operations.
Overall, this is a rare opportunity to secure a well-proportioned commercial unit in a convenient and established location, offering excellent potential for a wide range of business uses.
RENT: £8,340 (Inc. VAT) per Annum
DEPOSIT: £2,085 (Inc. VAT)
EPC: Grade II Listed (Exempt)
726 sq ft (67.5 sq m) of office space
Contact us for more information or to book a viewing.
The market town of Pershore is Georgian styled and provides high street shopping facilities and supermarket together with an indoor market and leisure complex. The river Avon runs to the east of the town lending itself to scenic walks and leisure pursuits. There are two medical centres and hospital and town library, together with excellent educational facilities within the area. Pershore has Number 8 which is run by voluntary help and provides theatre activities, a cinema, ballet and yoga classes and is very much a part of Pershore community living.
Pershore train station or the newly constructed Worcestershire Parkway Station provides links directly to London Paddington or Worcester Shrub Hill travelling on to Birmingham. The motorway is approximately nine miles distant at Worcester junction 7 of the M5, bringing Birmingham to the north and Bristol to the south within commutable distance. Other main centres are Stratford-upon-Avon with the theatre and racecourse, Cheltenham with National Hunt horse racing and the Everyman Theatre and major main shopping facilities, Worcester with famous Cathedral and equally famous cricket club together with the River Severn and good shopping centre.

